1. kerros

TOIMISTO- JA LABORATORIOTILAT

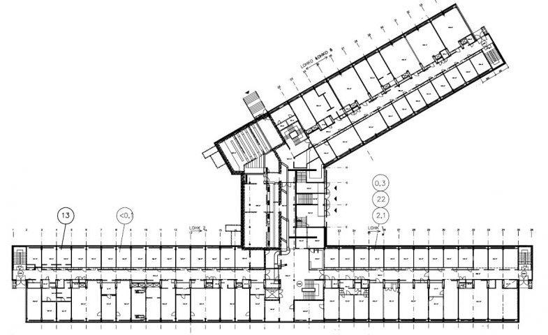
Ensimmäisessä kerroksessa on vuokrattavissa erikokoisia, joustavasti muunneltavia toimistotiloja sekä laboratoriotiloja.

Tilat soveltuvat monenlaiseen käyttöön ja tarjoavat toimivan ympäristön sekä yksittäisille toimijoille että isommille tiimeille.

 

  • Typpiparkin vuokrattava toimistotila

PERUSTIEDOT

Kerros 1

Pinta-ala 13-150 m2

KOHTEEN KUVAUS:

Tarjolla on kompaktia ja valoisaa 13-150 m² toimistotilaa, joka sijaitsee rakennuksen ensimmäisessä kerroksessa. Huoneet yhdisteltäviä. Tilat soveltuvat monenlaiseen käyttöön ja tarjoavat toimivan ympäristön sekä yksittäisille toimijoille että isommille tiimeille.

Kysy vapaita tiloja!

Ilmaiset neuvottelutilat ja auditorio vuokralaiselle
Isäntäpalvelu
Hyvät pysäköintimahdollisuudet
Scroll to Top